
SASKIAHUYS
Herontwikkeling gebouwencomplex - Amsterdam
SASKIA HUYS Herontwikkeling gebouwencomplex - Jodenbreestraat, Zwanenburgwal & Waterlooplein - Amsterdam
In het hart van de historische binnenstad van Amsterdam is een multifunctioneel gebouwencomplex herontwikkeld. Het project combineert renovatie en nieuwbouw, waarbij monumentale gevels zijn behouden en geintegreerd in een eigentijds woon- en cultuurprogramma.
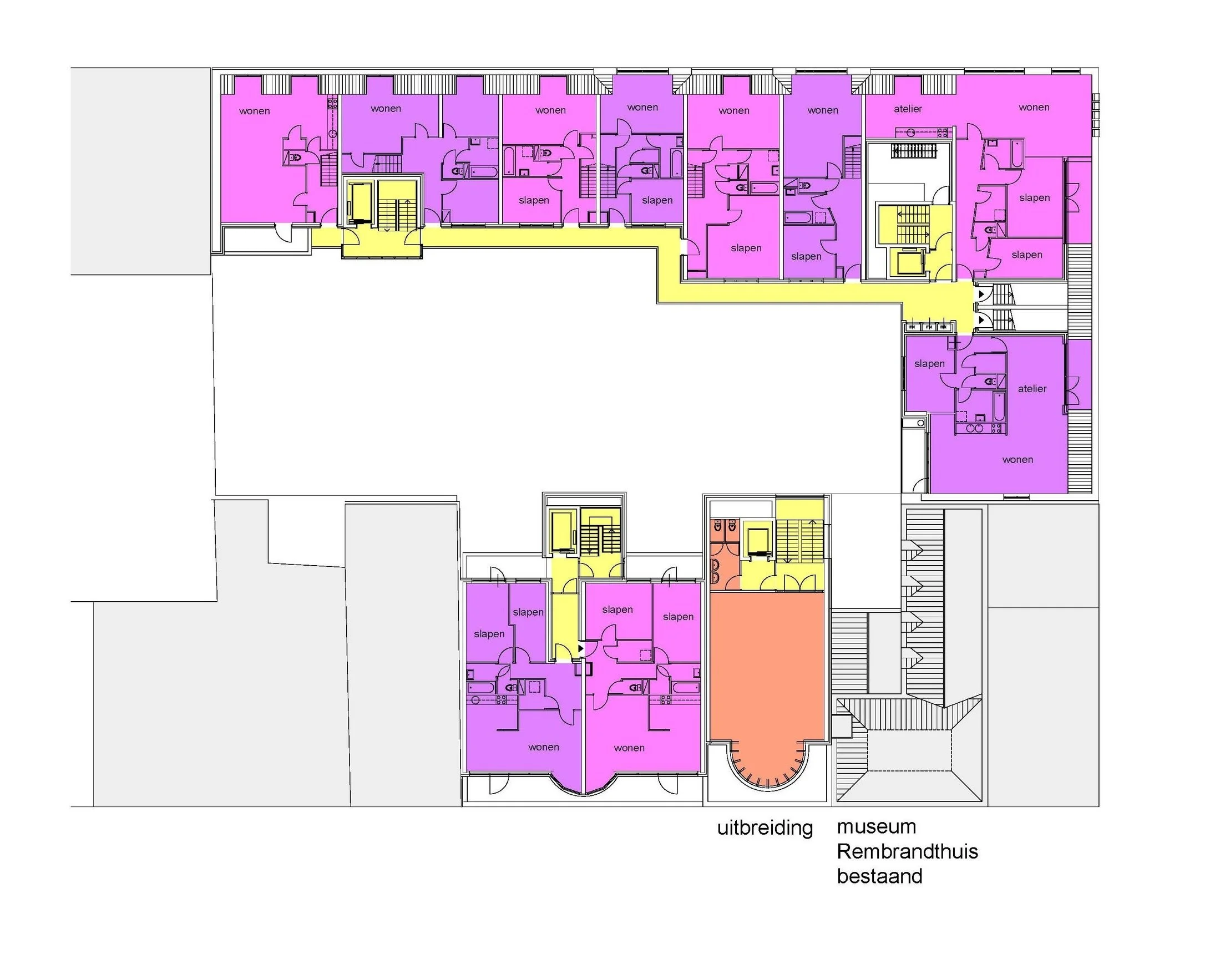
Binnen de historische gevelschil zijn 44 hoogwaardige appartementen gerealiseerd. Circa vijf meter diepte van de oorspronkelijke gevelstructuur is behouden, waardoor de nieuwe woningen zich moesten voegen naar de bestaande structuur. Door de variatie in pandbreedtes is een gevarieerd woningaanbod ontstaan.
De woningen starten op de derde bouwlaag, bovenop een plint met voorzieningen zoals een theater (Holland Experience), winkels, brasserie en een parkeergarage met bergingen. Op het dak van het plint is een collectieve binnenplaats aangelegd die de woningen verbindt. De hoger gelegen woningen zijn bereikbaar via galerijen. De woonruimten zijn georienteerd op de de straat en de stad. De slaapkamers zijn gesitueerd aan de binnenplaats met een meer introvert woonmilieu.
Uitbreiding Rembrandthuis Het negentiende-eeuwse Saskiahuis is volledig herbouwd. In overleg met de ontwikkelaar is de gevel 7,5 meter opgeschoven om ruimte te maken voor de uitbreiding van het Rembrandthuis. De nieuwe vleugel biedt het museum extra expositieruimte en moderne publieksvoorzieningen, waarmee het museum aansluit bij de eisen en verwachtingen van de hedendaagse bezoeker.
Locatie Waterlooplein, Zwanenburgwal en Jodenbreestraat, Amsterdam
Opdrachtgever Kroonenberg Groep Bestuur Museum Rembrandthuis
Aannemer Bouwbedrijf Midreth BV
Status Gerealiseerd
Programma Transformatie + nieuwbouw 10.000 m2 BVO - 44 appartementen - Uitbreiding Rembrandtmuseum - Theater met voorzieningen - Parkeergarage en bergingen