
BLOKKER
Hoogstraat - Rotterdam
Blokker - Hoogstraat, Rotterdam
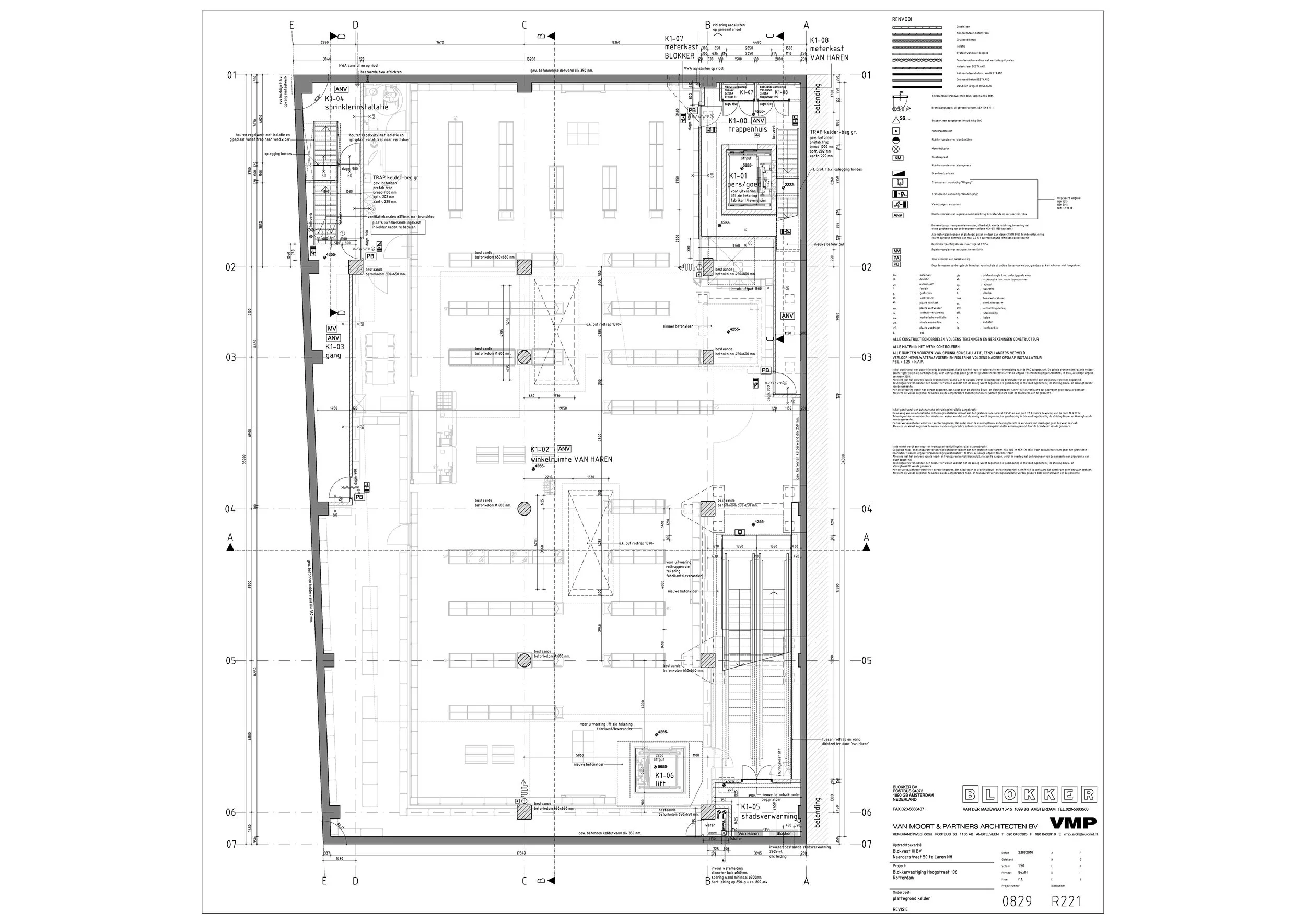
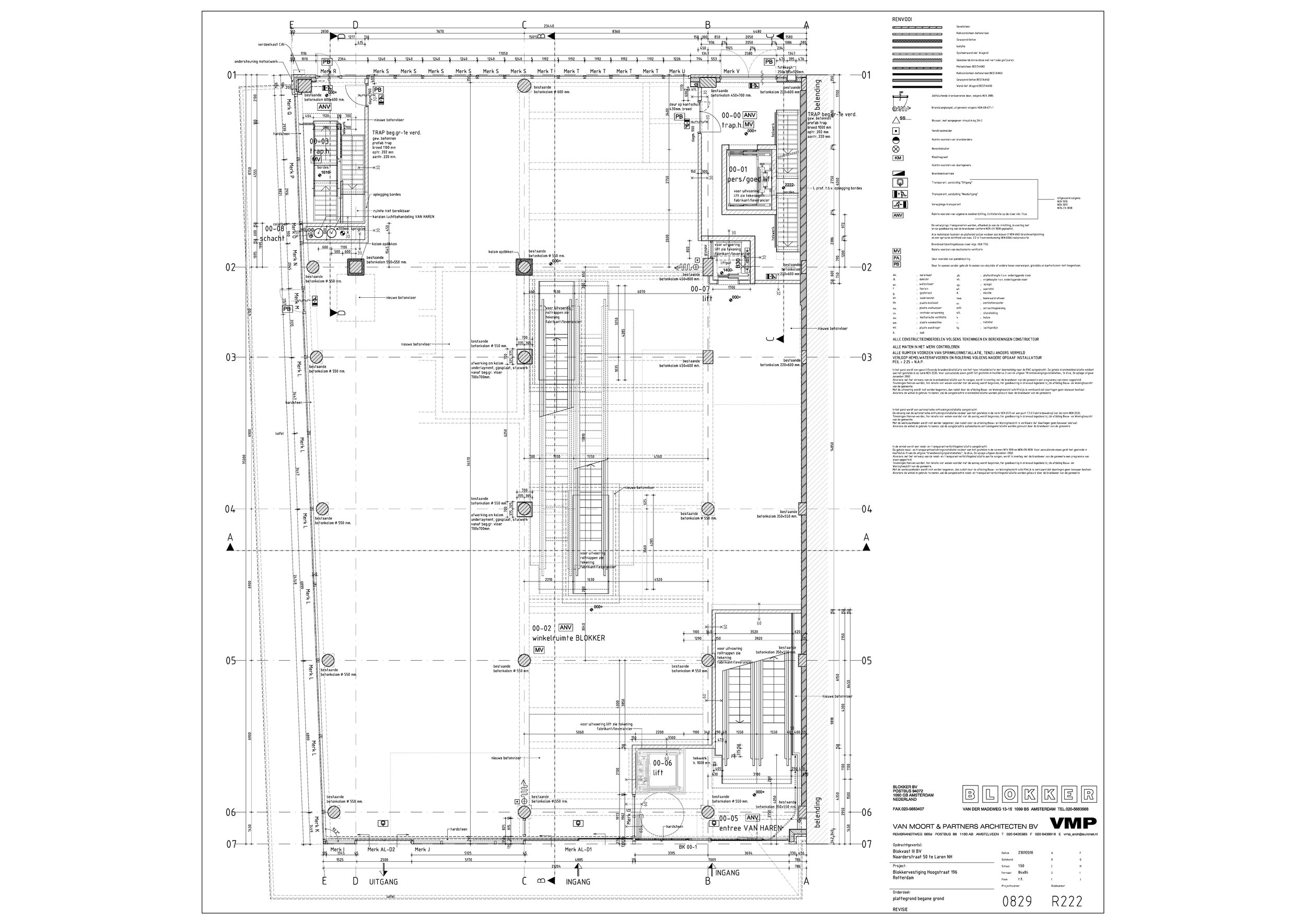
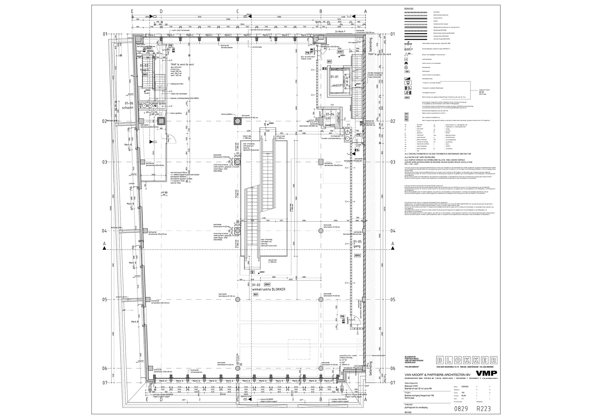
Het winkelpand van Blokker aan de Hoogstraat in Rotterdam, een naoorlogs gemeentelijk monument, werd in de jaren vijftig ontworpen door Kraaijvanger Architecten. Om het gebouw zijn oorspronkelijke glans, allure en stoere karakter terug te geven, was een ingrijpende renovatie noodzakelijk.
De bestaande indeling met entresolvloer sloot niet meer aan bij de huidige eisen van winkelgebruik. Bovendien verkeerde de gevel in een dusdanig slechte staat dat herstel onvermijdelijk was. Bij de herontwikkeling dienden de originele materiaalkeuze en detaillering als uitgangspunt, met respect voor de historische waarde van het pand.
Een belangrijk onderdeel van de renovatie was het heropenen van de grote puien op de begane grond en eerste verdieping. Hierdoor is meer transparantie gecreëerd en krijgt het gebouw zijn oorspronkelijke openheid en grandeur terug.
Namens Blokker Holding BV trad Van Moort & Partners Architecten op als projectarchitect voor deze herontwikkeling.
Locatie Rotterdam
Opdrachtgever Blokker Holding BV
Aannemer WEBA
Architect Kraaijvanger Architecten Van Moort & Partners (projectarchitect)
Status Gerealiseerd
Programma - 2880m2 BVO winkeloppervlak - Van Haren (kelder) - Blokker (BG/1e verdieping)




